Does the city yard have a place in twenty-first-century London?
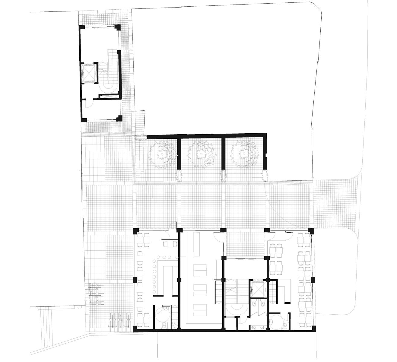
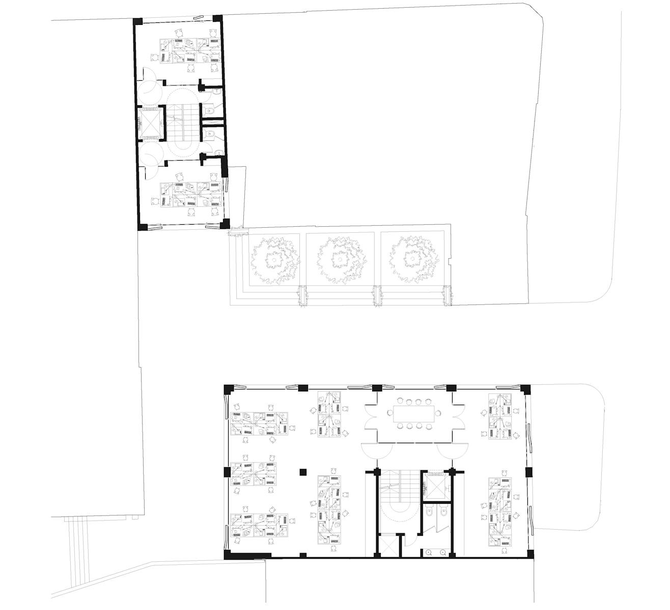
The urban grain of many inner London suburbs is textured with yards and mews, tucked away from the principal streets and traditionally offering space for small-scale industry and production. For us, these yards present an opportunity to not only create more contemporary workspaces but also precious pockets of public realm.
'Our new piece of public realm is protected from traffic and noise, offering a moment of serenity in the city'
The site at Capital Corner fronts onto Whitechapel Road and, to the east, New Road, and is currently used as a private car park. Our proposals, winner of the Workplaces category in the New London Awards in 2019, restore this back-of-house space to the community as a public yard, protected by two new buildings with commercial creative studio spaces and shops. The relatively simple forms of the buildings are based on the grid and rhythm of the existing street, and infill existing voids to reinforce the urban block.





















